FALSE CEILING
Other Chapters
FORMWORKFALSE CEILINGSTEEL STRUCTUREPRECAST CONSTRUCTION AND PRE-STRESSINGDEFECTS IN BUILDINGSTERMITE PROOFINGEARTHQUAKE IN BUILDINGS
- س1: فالس سیلنگ کی تعریف کریں۔جواب: فالس سیلنگ ایک معلق چھت کا نظام ہے جو کسی عمارت کے اندرونی حصے کی اصل چھت کے نیچے فراہم کی جاتی ہے۔
- س2: فالس سیلنگ کا مقصد بیان کریں؟جواب: فالس سیلنگ کے مقاصد درج ذیل ہیں:
- ● یہ جمالیاتی حسن کو بہتر بناتی ہے۔
- ● برقی تاروں کو چھپاتی ہے۔
- ● لائٹس لگانے کی جگہ فراہم کرتی ہے۔
- ● ڈکٹنگ کو چھپاتی ہے۔
- ● کمرے کے حجم کو کم کرتی ہے۔
- ● حرارت سے موصلیت فراہم کرتی ہے۔
- ● صوتی کارکردگی میں بہتری لاتی ہے۔
- س3: فالس سیلنگ کے بنیادی اجزاء کے نام لکھیں۔جواب: فالس سیلنگ کے اجزاء درج ذیل ہیں:
- ● بولٹس
- ● معلق پولز
- ● مربع پینلز
- ● وال اینگلز
- ● چینلز
- س4: فالس سیلنگ کے فوائد لکھیں۔جواب: فالس سیلنگ کے فوائد درج ذیل ہیں:
- ● یہ آگ سے بچاؤ فراہم کرتی ہے۔
- ● چھت کو ہموار اور یکساں سطح فراہم کرتی ہے۔
- ● یہ دیکھنے میں خوبصورت لگتی ہے۔
- ● بدنما چیزوں کو چھپاتی ہے۔
- ● یہ صوتی اصلاح میں مدد دیتی ہے۔
- س5: پلی نم اسپیس کی تعریف کریں۔جواب: چھوڑی گئی سیلنگ کے اوپر کا حصہ 'پلی نم اسپیس' کہلاتا ہے، کیونکہ بعض اوقات یہ HVAC ایئر ریٹرن کے لیے استعمال ہوتا ہے۔ اسے عام طور پر پائپنگ، وائرنگ، اور ڈکٹنگ کو چھپانے کے لیے بھی استعمال کیا جاتا ہے۔
- س6: فالس سیلنگ کے نقصانات لکھیں۔جواب: فالس سیلنگ کے چند نقصانات درج ذیل ہیں:
- ● سب سے بڑا نقصان یہ ہے کہ پلی نم اسپیس میں کیڑے مکوڑے پیدا ہو سکتے ہیں۔
- ● فالس سیلنگ کم اونچائی والے کمروں میں استعمال نہیں کی جا سکتی۔
- س7: عام طور پر استعمال ہونے والی فالس سیلنگز کے نام لکھیں۔جواب: عام طور پر تین اقسام استعمال ہوتی ہیں:
- ● جپسم بورڈ فالس سیلنگ
- ● پی او پی (POP) فالس سیلنگ
- ● منرل فائبر بورڈ فالس سیلنگ
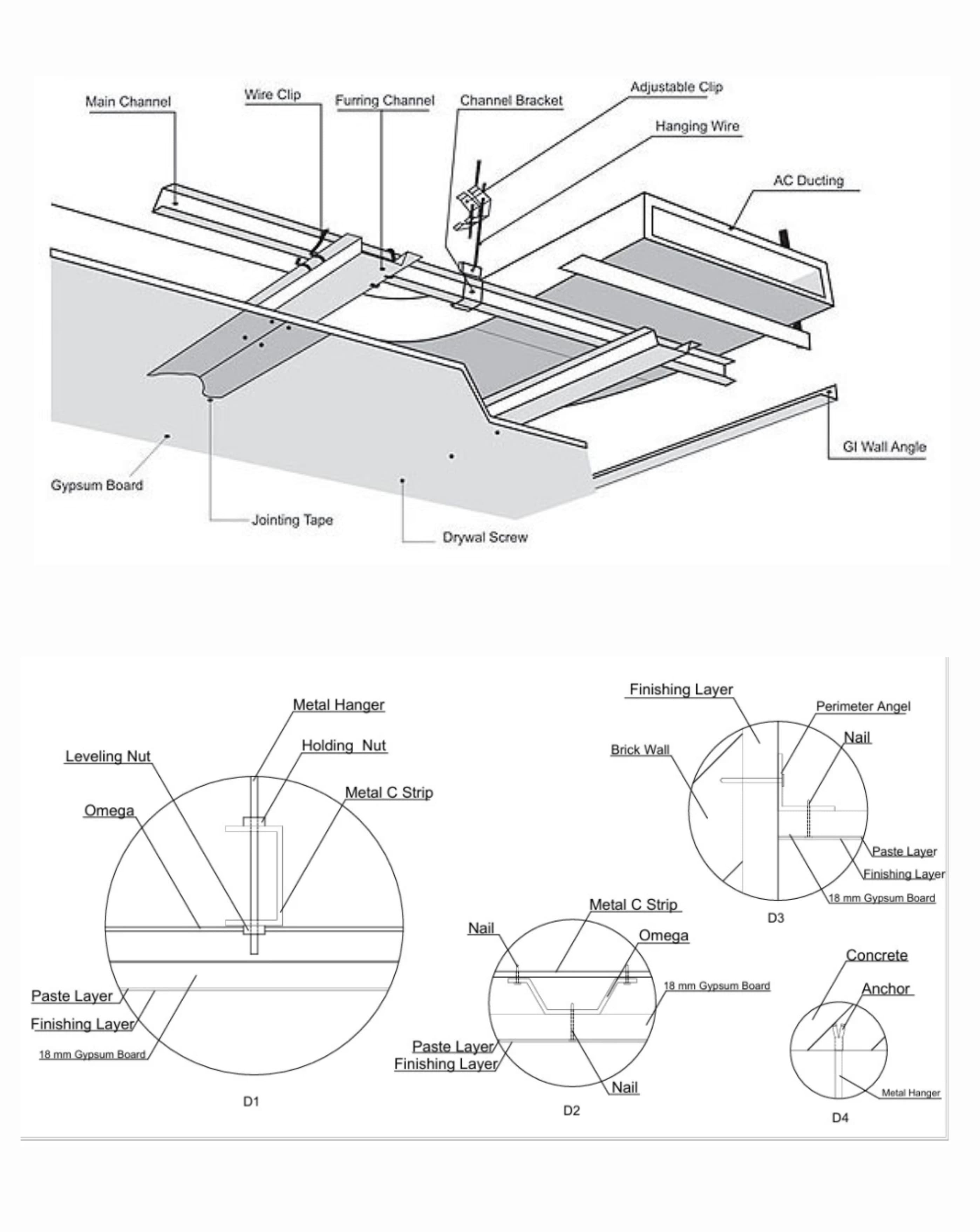
- س8: جپسم فالس سیلنگ کی تعریف کریں۔جواب: جپسم ایک نرم اور ہلکا ہائیڈریٹڈ سلفیٹ آف کیلشیم ہے۔ جپسم فالس سیلنگ جپسم بورڈز پر مشتمل ہوتی ہے جو لوہے کے فریم ورک سے سہارا دی جاتی ہے۔ یہ مختلف موٹائی اور سائز میں دستیاب ہوتی ہے۔
- س9: پی او پی فالس سیلنگ کی تعریف کریں۔جواب: پلاسٹر آف پیرس (POP) عام طور پر فالس سیلنگ بنانے کے لیے استعمال ہوتا ہے۔ جب جپسم کو گرم کیا جاتا ہے تو وہ پانی خارج کرتا ہے، جس سے POP بنتا ہے۔ فالس سیلنگ کی خوبصورتی کی سب سے اہم خصوصیت 'کَو لائٹنگ' ہوتی ہے جو کہ روشنی کی ایک بالواسطہ شکل ہے۔
- س10: گلاس فالس سیلنگ کے بارے میں آپ کیا جانتے ہیں؟جواب: گلاس ایک غیر بلوریں (non-crystalline) مادہ ہے۔ اس کی عام خصوصیات میں نازک اور شفاف ہونا شامل ہے۔ فالس سیلنگ کے لیے فائبر گلاس استعمال کی جاتی ہے۔ گلاس ایک موصل اور آگ سے بچاؤ والا مواد ہے۔
- س11: ووڈن فالس سیلنگ کے بارے میں آپ کیا جانتے ہیں؟جواب: ووڈن فالس سیلنگ آج کل عام طور پر استعمال ہوتی ہے اور دیکھنے والوں پر خوشگوار اثر ڈالتی ہے۔ کھوکھلے لکڑی کے بلاکس، لکڑی کے پینلز یا بورڈز کو استعمال کر کے یہ سیلنگ بنائی جاتی ہے۔
- س12: فالس سیلنگ لگانے کا طریقہ لکھیں۔جواب: فالس سیلنگ لگانے کا عمل ایک ہلکے وزن کے فریم ورک (عام طور پر میٹل چینلز یا لکڑی کے بیٹنز) کو مرکزی چھت سے ہینگرز کے ذریعے معلق کرنا ہوتا ہے۔ اس فریم ورک پر سیلنگ بورڈز یا پینلز (جیسے جپسم، پی او پی، یا پی وی سی) لگائے جاتے ہیں، جوڑوں کو مکمل کیا جاتا ہے، اور سطح کو پینٹ یا سجاوٹ سے تیار کیا جاتا ہے۔ اس سے ہموار سطح بنتی ہے جو تاروں، ڈکٹس اور لائٹس کو چھپا لیتی ہے۔
- س13: فالس سیلنگ میں استعمال ہونے والے مواد کے نام لکھیں۔جواب: فالس سیلنگ میں عام استعمال ہونے والے مواد درج ذیل ہیں:
- ● جپسم بورڈز
- ● پلاسٹر آف پیرس (POP)
- ● منرل فائبر بورڈز
- ● فائبر گلاس
- ● پی وی سی پینلز
- ● لکڑی کے پینلز
- س14: کچن کے لیے کون سی فالس سیلنگ بہتر ہے؟جواب: کچن میں عام طور پر پی وی سی سیلنگ استعمال کی جاتی ہے۔
- س15: Soffit کی تعریف کریں۔جواب: Soffit کسی بھی معماری سطح جیسے شہتیر (beam) یا محراب (arch) کی نچلی یا اندرونی سطح کو کہا جاتا ہے۔
- س16: Rawl Plug کا استعمال کیا ہے؟جواب: Rawl Plug کا استعمال پیچ (screw) کو اینٹ، کنکریٹ یا پلستر جیسی سطحوں میں مضبوطی سے جمانے کے لیے کیا جاتا ہے۔ یہ پیچ کو ڈھیلا ہونے یا باہر نکلنے سے روکتا ہے۔
- س17: Galvanization کے عمل کی وضاحت کریں۔جواب: Galvanization ایک ایسا عمل ہے جس میں لوہے یا اسٹیل پر زنک (zinc) کی ایک پتلی تہہ چڑھائی جاتی ہے تاکہ اسے زنگ لگنے اور خراب ہونے سے بچایا جا سکے۔
- س18: False Ceiling کے لیے استعمال ہونے والی لکڑیوں کے نام بتائیں۔جواب: False Ceiling کے لیے درج ذیل لکڑیاں استعمال ہوتی ہیں:
- ● پلائی ووڈ (Plywood)
- ● ساگوان (Teak)
- ● دیودار (Cedar)
- س19: False Ceiling کے لیے استعمال ہونے والی دھاتوں کے نام بتائیں۔جواب: False Ceiling کے لیے درج ذیل دھاتیں استعمال ہوتی ہیں:
- ● ایلومینیم (Aluminium)
- ● گیلوانائزڈ آئرن (Galvanized Iron)
- س20: Plenum Space کا مقصد کیا ہے؟جواب: Plenum Space کا بنیادی مقصد نالیوں (ducts) اور برقی تاروں (wiring) کو چھپانا ہوتا ہے۔
- س21: جپسم کا بنیادی جزو کیا ہے؟جواب: جپسم کا بنیادی جزو کیلشیم سلفیٹ ڈائی ہائیڈریٹ (Calcium Sulfate Dihydrate - CaSO₄·2H₂O) ہے۔
- س22: Ceiling اور False Ceiling میں کیا فرق ہے؟جواب: Ceiling کمرے کی بالائی سطح ہوتی ہے جو چھت کے نچلے حصے کی نمائندگی کرتی ہے، جبکہ False Ceiling ایک مصنوعی چھت ہوتی ہے جو اصل چھت کے نیچے معلق (suspended) کی جاتی ہے۔
